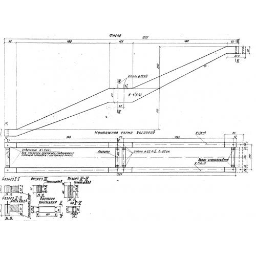
К 1
Характеристики изделия:
| Параметр | Значение |
|---|---|
| длина | 12050 мм |
| ширина | 260 мм |
| высота | 4200 мм |
| масса | 3800 кг |
| нормативный документ | ТП 501-166 |
Цена:
Рассчитать стоимостьК 1 Косоуры по Типовому проекту ТП 501-166.
| Параметр | Значение |
|---|---|
| длина | 12050 мм |
| ширина | 260 мм |
| высота | 4200 мм |
| масса | 3800 кг |
| нормативный документ | ТП 501-166 |
К 1 Косоуры по Типовому проекту ТП 501-166.
