УПС 31
Характеристики изделия:
| Параметр | Значение |
|---|---|
| длина | 10370 мм |
| ширина | 205 мм |
| высота | 280 мм |
| масса | 1175 кг |
| нормативный документ | Шифр 26.0085 |
Цена:
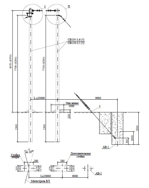
Рассчитать стоимостьУПС 31 Специальные угловые одноцепные опоры с оттяжкой Шифр 26.0085.
| Параметр | Значение |
|---|---|
| длина | 10370 мм |
| ширина | 205 мм |
| высота | 280 мм |
| масса | 1175 кг |
| нормативный документ | Шифр 26.0085 |
УПС 31 Специальные угловые одноцепные опоры с оттяжкой Шифр 26.0085.