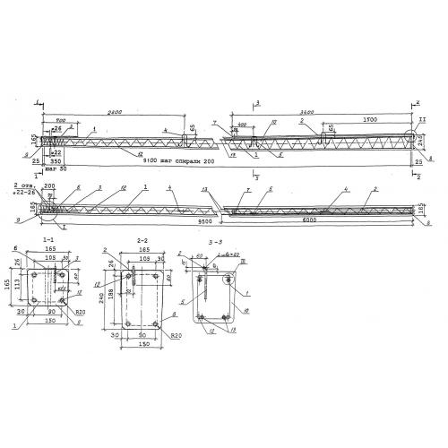
СВ 95
Характеристики изделия:
| Параметр | Значение |
|---|---|
| длина | 9500 мм |
| ширина | 165 мм |
| высота | 240 мм |
| масса | 750 кг |
| нормативный документ | Шифр 20.0139 |
Цена:
Рассчитать стоимостьСВ 95 Стойки вибрированные по Шифру 20.0139.
| Параметр | Значение |
|---|---|
| длина | 9500 мм |
| ширина | 165 мм |
| высота | 240 мм |
| масса | 750 кг |
| нормативный документ | Шифр 20.0139 |
СВ 95 Стойки вибрированные по Шифру 20.0139.
