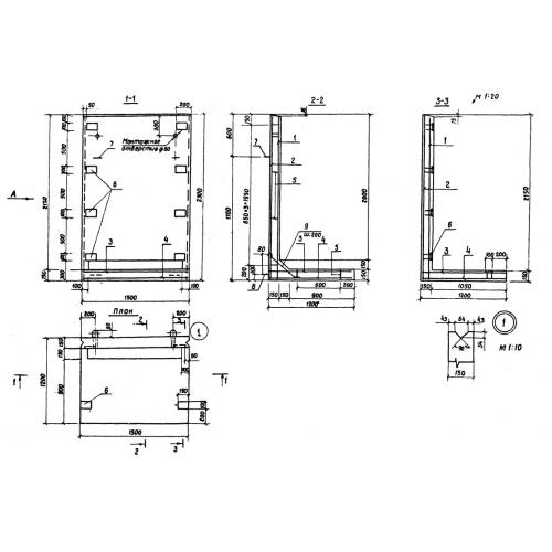
ОГ-23

Чертеж изделия:
Характеристики изделия:
ПараметрЗначение
длина1500 мм
ширина1200 мм
высота2300 мм
масса1925 кг
нормативный документСерия 3.820-6

ОГ-23   Открылки Г-образные портального оголовка по Серии 3.820-6.