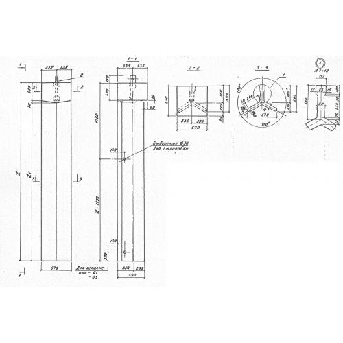
ТА 4.5

Чертеж изделия:
Характеристики изделия:
ПараметрЗначение
длина4500 мм
ширина670 мм
высота670 мм
вес1460 кг
серия3.501.1-149

ТА 4.5 Трехлучевые анкера по серии 3.501.1-149.