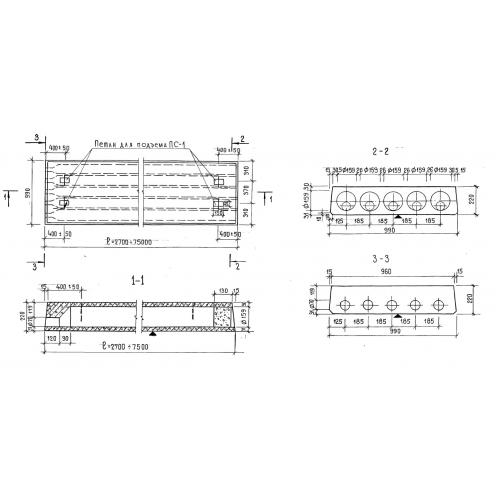
БПК 35.10
Характеристики изделия:
| Параметр | Значение |
|---|---|
| длина | 3500 мм |
| ширина | 990 мм |
| высота | 220 мм |
| вес | 1073 кг |
| серия | 1.141.1 КР-3 |
Цена:
Рассчитать стоимостьБПК 35.10 Панели с круглыми пустотами без выпускных ребер по серии 1.141.1 КР-3.
| Параметр | Значение |
|---|---|
| длина | 3500 мм |
| ширина | 990 мм |
| высота | 220 мм |
| вес | 1073 кг |
| серия | 1.141.1 КР-3 |
БПК 35.10 Панели с круглыми пустотами без выпускных ребер по серии 1.141.1 КР-3.
