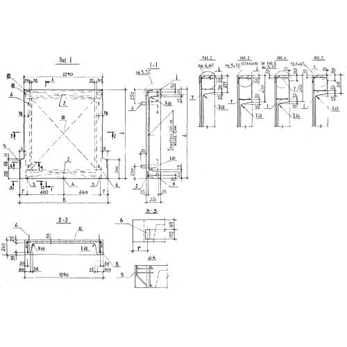
ЛПП 14.15 лестничные площадки
Характеристики изделия:
| Параметр | Значение |
|---|---|
| длина | 1440 мм |
| ширина | 1475 мм |
| высота | 240 мм |
| масса | 600 кг |
| нормативный документ | Серия 1.050.1-2 |
Цена:
Рассчитать стоимостьЛПП 14.15 Лестничные площадки и полуплощадки ребристые Серия 1.050.1-2.
