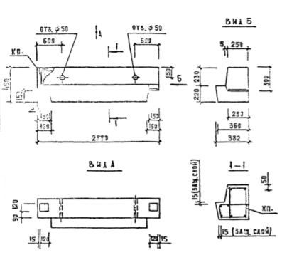
РЛП 4.26 ригели
Характеристики изделия:
| Параметр | Значение |
|---|---|
| длина | 2560 мм |
| ширина | 382 мм |
| высота | 450 мм |
| масса | 840 кг |
| нормативный документ | Серия 1.020-1/87 |
Цена:
Рассчитать стоимостьРЛП 4.26 Ригели однополочные, устанавливаемые в лестничных клетках для опирания многопустотных плит и лестнечных маршей, Серия 1.020-1/87.