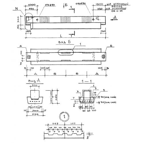
РДП 4.57

Чертеж изделия:
Характеристики изделия:
ПараметрЗначение
длина5660 мм
ширина550 мм
высота450 мм
масса2525 кг
нормативный документСерия 1.020-1

РДП 4.57  Ригели с двумя полками  Серия 1.020-1.