ПП 1

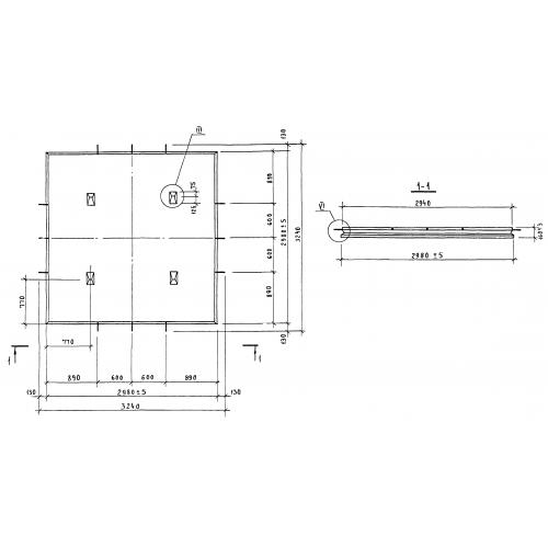
Чертеж изделия:
Характеристики изделия:
ПараметрЗначение
длина2980 мм
ширина2980 мм
высота160 мм
масса3500 кг
нормативный документГОСТ 27108-86

ПП 1  Пролктные плиты ГОСТ 27108-86.